-
-
Втулки изолирующие для рельсовых скреплений типа КБ |
|
Обозначение
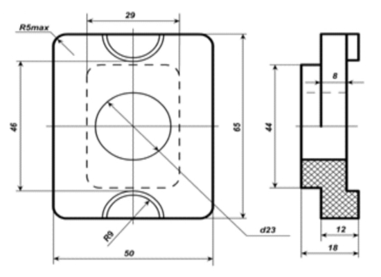
Втулки изолирующие для рельсовых скреплений типа КБ, предназначенные для электрической изоляции болтов рельсовых скреплений железнодорожного пути.Изготовлены из материала нового поколения – АПП, соответствуют требованиям технических условий Украины ТУ У 01116472.006-96 и технических условий России ТУ 32 ЦП 748-86. Имеют сертификат соответствия № UA.010.27377-00 от 19.12.00 |
|
Технические характеристики
1 Электрическое сопротивление при температуре 20 0С не менее 4*104 Ом 2 Физико-механические показатели при температуре +20 +/-2 0С, в т ч
4 Маслопоглощение в осевом масле за 24 ч массовый % не более 0,8 |



